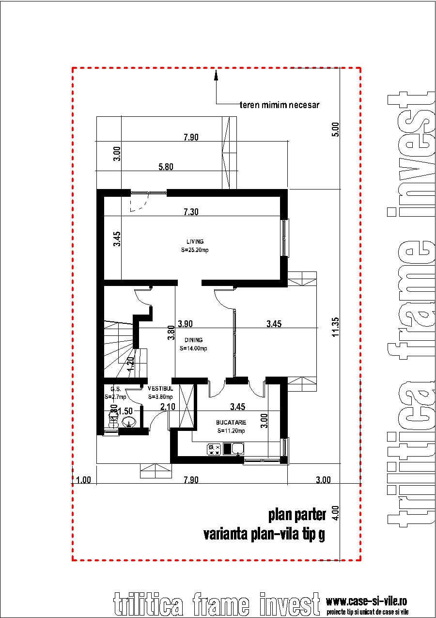
Descriere Proiect Casa P+M Vila Tip G:
- Suprafata desfasurata=164,23 mp,
- Suprafata Plan Parter=78,23 mp,
- Suprafata Plan Mansarda=86,00 mp,
- Suprafata utila=131 mp,
- Plan Parter: Camera de zi 25,20 mp, Loc de luat masa 14,00 mp, bucatarie 11,20 mp, grup sanitar
- Plan Mansarda: 3 Dormitoare 15,45 mp, 12,75 mp, 11,40 mp, baie
Planuri Casa:
Planuri Casa, Varianta cu un Dormitor la Parter:
Planuri Casa, Varianta cu Garaj Adosat:








